CAFE DEL BELLO
CAFE DEL BELLO
CAFE DEL BELLO represents a refined approach to café interior design—where brand identity, craftsmanship, and functionality converge. Designed and executed by Ammar Al Kahwahji Architecture, this concept defines the spatial DNA of a growing coffee chain in Istanbul, realized through five branches between 2021 and 2025.
Contents
Project Information
Each location maintains the brand’s recognizable architectural character: a composition of warm copper tones, rich wood textures, and precise lighting that together form a sensory experience inspired by the coffee-making ritual itself. While every branch responds to its specific spatial constraints, the identity remains unmistakably consistent—supporting recognition, comfort, and operational clarity.
Concept and Design Language
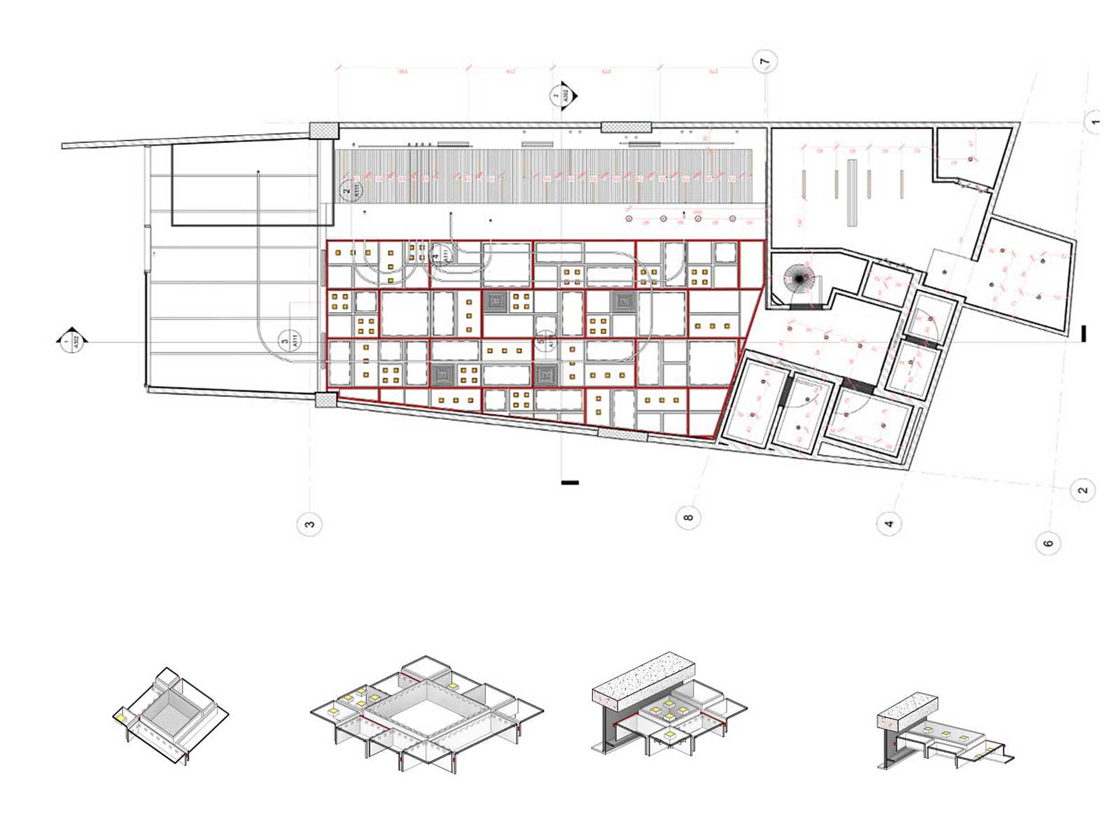
The design narrative revolves around the journey of the roasted bean. A signature parametric wooden ceiling in copper finish becomes the defining element—symbolizing beans in motion and visually linking all branches under a unified spatial identity. This ceiling also conceals technical systems and enhances acoustics, merging aesthetic intent with functional performance.
The overall atmosphere balances industrial precision with artisanal warmth, reflecting contemporary Istanbul café culture where design sophistication meets everyday comfort.
Spatial Planning and Functionality
The 224 m² layout is optimized for fluid circulation and ergonomic workflow across high-traffic environments. A clearly defined counter line separates guest and staff zones while maintaining visual openness. Distinct seating clusters—communal, lounge, and bar—support both social gatherings and private workspaces, allowing the space to perform throughout the day.
The roasting and grinding station is intentionally showcased as a visual centerpiece, reinforcing authenticity and highlighting the craft behind specialty coffee. Lighting and acoustics are layered to support transitions between day and evening moods, ensuring a consistently welcoming experience across all branches.
Material and Color Palette
The material selection anchors the brand’s identity. Copper-painted wood and dark-stained slats evoke warmth and craftsmanship, while Grey Diano stone and Ark Silver porcelain flooring provide durability with understated elegance. Accents of terrazzo and matte black profiles enhance visual rhythm while maintaining harmony.
Every surface—from the bar counter to the seating modules—was designed as part of an integrated composition that balances tactility, maintenance, and longevity for daily use.
Lighting and Ambience
Layered lighting defines the emotional tone of the space. Warm indirect illumination from the copper ceiling modules complements focused lighting on the coffee counter and display areas. This combination creates a distinct rhythm that highlights texture, supports wayfinding, and reinforces the brand’s crafted, sensory-driven experience.
Brand Roll-out and Consistency
Across all five branches, Ammar Al Kahwahji Architecture ensured brand consistency through a modular interior system that adapts to different spatial conditions while preserving signature identity elements. This approach transformed CAFE DEL BELLO from a single venue into a recognizable architectural brand—one that expresses both authenticity and refinement.
Project Highlights
Explore more studio work via Projects and learn more About the practice.
Project Facts
- Project Name: CAFE DEL BELLO
- Location: Istanbul, Turkey
- Built Area: 224 m²
- Date: 2021–2025
- Type: Interior Design – Coffee Chain
- Branches Completed: 5
- Role: Interior Design and Turnkey Execution
- Studio: Ammar Al Kahwahji Architecture













